Weissenbruchlaan
3054LN Rotterdam
€ 2.495
84 m²
3 kamers
Omschrijving
Weissenbruchlaan 18 3054 Rotterdam
UITSLUITEND REAGEREN VIA EMAIL, TELEFONISCH WORDEN GEEN AFSPRAKEN INGEPLAND!
Huurperiode: minimaal 12 maanden
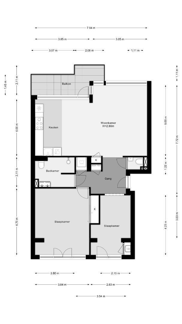
Woning (ca.84m2).
Zeer charmant volledig gemeubileerd 3-kamer appartement gelegen op de tweede verdieping met uitzicht op de Bergse Voorplas in Hillegersberg. Het hele appartement is gestoffeerd en volledig gemeubileerd en voorzien van mooie sfeerverlichting en dubbelglas en vloerverwarming.
Indeling:
Op de begane grond is de centrale entree met een lift en trappenhuis naar de verdiepingen en de kelder. Bij binnenkomst van het appartement op de tweede verdieping is de entree, de bergkast, wasruimte en het toilet. Via de hal kom je in de woon-eetkamer die is voorzien van een heerlijk balkon.
De luxe open keuken is voorzien van de benodigde apparatuur zoals magnetron combi-oven, gasfornuis, een vaatwasser, quooker keukenkraan en een koel-vriescombinatie. De woning heeft 2 ruime slaapkamers gelegen aan de achterzijde van het appartement. De badkamer heeft een inloopdouche, een dubbele wastafelcombinatie en een bidet. In de kelder van het appartementen complex bevindt zich een opslagruimte. Op ca.200 meter afstand van de entree/begane grond is het gratis parkeren.
Hillegersberg:
Deze rustige wijk genst aan het Lage Bergse Bos. Het winkelplein aan de Van Beethovensingel met tram- en bushalte zijn om de hoek gelegen. Binnen 100 meter is de rechtstreekse tramverbinding naar Rotterdam Centraal station. Diverse middelbare scholen, vele sportverenigingen, de Bergse Plassen, de Rotte Meren en de winkels en horeca rondom de Bergse Dorpsstraat bevinden zich op loopafstand. Het centrum van Rotterdam ligt op ca.20 minuten fietsafstand. Rotterdam The Hague Airport en de snelwegen rondom Rotterdam zijn snel bereikbaar.
Bijzonderheden:
Energielabel C
Woonoppervlakte 84 m²
Dubbel glas
Roken niet toegestaan
Huurprijs:
Voor het huren van deze woning geldt een inkomenseis van 3 keer de maandhuur als bruto salaris.
Studenten zijn niet toegestaan
Huurprijs per maand : € 2.295,- excl. gas, licht en water en gemeentelijke lasten woonlasten.
Service kosten / meubilering: €100,- per maand
Waarborgsom: € 4.500,-
Huurcontract minimaal 12 maanden
Beschikbaar per direct.
Er kunnen geen rechten worden ontleend aan de gegevens, tekst en foto’s van dit object.
Kenmerken
Overdracht
Vraagprijs
€ 2.495
Aangeboden sinds
16-07-2024
Status
Verhuurd
Aanvaarding
Bouw
Soort
Appartement, Portiekflat,
Soort bouw
N.v.t.
Bouwjaar
1959
Oppervlakte & inhoud
Wonen
84 m²
Indeling
Aantal kamers
3
Aantal badkamers
1
Aantal woonlagen
2
Energie
Energielabel
C
Buitenruimte
Ligging
Bij ov voorziening


